Dancing House Plan And Section The Dancing House known in Czech as tan c d m is a famous deconstructivist architectural building located on the Ra n Embankment in Prague Czech Republic The construction in 1992 and finished in 1996 The building was designed by Canadian American architect Frank Gehry and Croatian Czech architect Vlado Miluni
Dancing House designed by Frank Gehry Vlado Milunic is located at Prague Czech Republic It was designed in 1992 and built in 1994 1996 It is built on a 491m2 lot with a total built up area of 5 400 m2 Other people involved in the desing and construction process of the Dancing House were ATIPA s r o as Structural Engineer Designed in 1992 Built in 1994 1996 Floors 8 Land Area 491m2 Built up Area 5 400 m2 Location Prague Czech Republic Construction of The Dancing House As we read it took the time interval of 4 years to create the dancing house And it is one of the most impressive buildings in the world
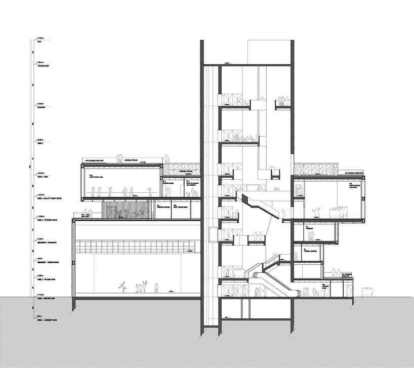
Dancing House Plan And Section

Dancing House Plan And Section
https://3dmodels.org/wp-content/uploads/Buildings/057_Dancing_House/057_Dancing_House_600_0007.jpg

10 Things You Did Not Know About Dancing House Prague RTF
https://www.re-thinkingthefuture.com/wp-content/uploads/2020/05/A901-10-Things-you-did-not-know-about-Dancing-House-Dancing-House-Sketch-Image-1.jpg

The Uncrustable Ky Post Modernism
https://www.re-thinkingthefuture.com/wp-content/uploads/2020/05/A901-10-Things-you-did-not-know-about-Dancing-House-—-Prague.jpg
The location of the Dancing House is a heavily built up part at the Czech capital city The building is very different in appearance from the vast majority of its neighbors which tend to employ art nouveau or traditional baroque architecture The Dancing House Czech Tancici dum or Fred and Ginger is the nickname given to the Nationale Nederlanden building in Prague Czech Republic at Rasinovo nabrezi Rasin s riverbank It was designed by the Croatian Czech architect Vlado Milunic in co operation with the renowned Canadian American architect Frank Gehry on a vacant riverfront plot
The Dancing House Czech Tan c d m or Ginger and Fred is the nickname given to the Nationale Nederlanden building on the Ra novo n b e Ra n Embankment in Prague Czech Republic It was designed by the Croatian Czech architect Vlado Miluni in cooperation with Canadian American architect Frank Gehry on a vacant riverfront plot The Dancing House located in Prague Czech Republic is a unique and iconic architectural masterpiece that has become a symbol of the city s modern architecture Designed by renowned architects Frank Gehry and Vlado Miluni the building stands out among the traditional Baroque and Gothic architecture that Prague is known for
More picture related to Dancing House Plan And Section

Dancing House Floor Plan Floorplans click
https://en.wikiarquitectura.com/wp-content/uploads/2017/01/dancing-house-4.jpg

Dancer s House By RAW Architecture Wowow Home Magazine
https://cdn.wowowhome.com/photos/2020/04/dancers-house-by-raw-architecture-36-1536x1087.jpg

Ashkelon Music And Dance Center By Manuelle Gautrand
http://www.designboom.com/wp-content/uploads/2013/05/emanuelle-gautrand-ashkelon-music-and-dance-center-designboom-05.jpg
The Dancing House s unusual origins can be traced back to the end of the Second World War when American aviation began a horrible attack against the capital killing 700 people and destroying almost 200 buildings in under 5 minutes A grand mansion previously occupied the location of the Dancing House The Dancing House Today As of today the dancing house has been renovated to a 21 room luxury hotel with the restaurant on the 7 th floor The restaurant is named after Fred and ginger the dancers There is a bar on the 8 th floor which is made entirely on the glass The building exterior and interior are considered a piece of art and now the
The Dancing House Location Prague Czech Republic Architects Vlado Milunic Frank Gehry Interior Eva Ji i n Typology Office Style Deconstructivist Developer Nationale Nederlanden group Designed in 1992 Land Area 491 m 2 Built up area 5400m 2 No of floors 8 Materials used Concrete Steel Glass Visual Piece of Art Reporting from Washington Jan 22 2024 3 04 p m ET The Supreme Court sided with the Biden administration on Monday in a dispute over a concertina wire barrier erected by Texas along the

10 Things You Did Not Know About Dancing House Prague RTF
https://www.re-thinkingthefuture.com/wp-content/uploads/2020/05/A901-10-Things-you-did-not-know-about-Dancing-House-Un-aligned-3D-windows-Image-1.jpg

10 Things You Did Not Know About Dancing House Prague
https://www.re-thinkingthefuture.com/wp-content/uploads/2020/05/A901-10-Things-you-did-not-know-about-Dancing-House-Fred-and-Ginger-Image-1-1-1024x583.jpg

https://www.masterclass.com/articles/dancing-house-architecture-explained
The Dancing House known in Czech as tan c d m is a famous deconstructivist architectural building located on the Ra n Embankment in Prague Czech Republic The construction in 1992 and finished in 1996 The building was designed by Canadian American architect Frank Gehry and Croatian Czech architect Vlado Miluni

https://en.wikiarquitectura.com/building/dancing-house/dancing-house-plan-2/
Dancing House designed by Frank Gehry Vlado Milunic is located at Prague Czech Republic It was designed in 1992 and built in 1994 1996 It is built on a 491m2 lot with a total built up area of 5 400 m2 Other people involved in the desing and construction process of the Dancing House were ATIPA s r o as Structural Engineer

Dancing House Dancing House Building House

10 Things You Did Not Know About Dancing House Prague RTF

Concepto Dancing Building Arquitectura En Red

Prague Dancing House By Kemal Demirpolat On Dribbble

Dancing House Floor Plan Floorplans click

Dancing House Floor Plan Floorplans click

Dancing House Floor Plan Floorplans click

Top 83 Dancing House Sketch Seven edu vn

Fantastic Free Of Charge Plan 509 45 Main Floor I Might Make The Living Room A Game Room Or A

Hand drawn Perspective Of The Fred Ginger Building Dancing House Designed By Frank Gehry
Dancing House Plan And Section - The Dancing House Czech Tancici dum or Fred and Ginger is the nickname given to the Nationale Nederlanden building in Prague Czech Republic at Rasinovo nabrezi Rasin s riverbank It was designed by the Croatian Czech architect Vlado Milunic in co operation with the renowned Canadian American architect Frank Gehry on a vacant riverfront plot